

Appartement 4 pièce(s) 3 chambre(s) 84.94 m²
Marseille (13007)A propos de ce bien
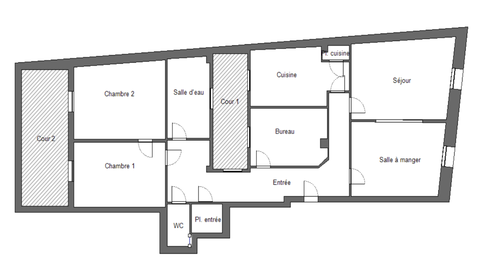
A vendre secteur Malmousque. A rénover entièrement, cet appartement T4 en RDC d'une surface de 85m² + 2 cours de 7 et 10m². Au sein d'une petite copropriété, cet appartement traversant propose de beaux volumes dans un quartiers prisé. Son environnement est composé de commerces, écoles et accès à la mer. Les informations sur les risques auxquels ce bien est exposé sont disponibles sur le site Géorisques : www.georisque.gouv.fr
Caractéristiques de ce bien
- Surface 84,94 m²
- carrez 84,94 m²
- séjour 24 m²
- 3 chambre(s)
- 1 salle(s) d'eau
- cuisine séparée
- exposition Sud-Est
- 3 étage(s)
Diagnostics énergétiques
Montant estimé des dépenses annuelles d'énergie de ce logement pour un usage standard est compris entre 1 040 € et 1 460 € . 2021 étant l'année de référence des prix de l'énergie utilisés pour établir cette estimation.
Diagnostics énergétiques
Montant estimé des dépenses annuelles d'énergie de ce logement pour un usage standard est compris entre 1 040 € et 1 460 € . 2021 étant l'année de référence des prix de l'énergie utilisés pour établir cette estimation.
Informations financières
Informations de copropriété
Autour du bien
-
Commerces et santé
-
Loisirs
-
Ecoles
-
Transports
-
Pratique